

谢邀,先说结论:
干说没有很大参考意义,分享一个我很喜欢的现代极简的作风案例,屋主把整个装修的进程分享的很细致,希望对题主能有些协助。
关于屋主
大腿哥哥,顽强的装修小白,植物迷信专业,主业是在国企做投资,兼职设计灯光、卖射灯,目前独身。
整个装修历时21个月,进程异常迂回艰辛,对屋主的人生来说是一个很大的转机。甚至*后把自己逼成强迫症,都只为完本钱人想要的家。

房屋信息
坐 标:广东 中山 户 型:三室一厅 面 积:206㎡ 设 计:大腿哥哥 费 用:66w 装修时长:21个月


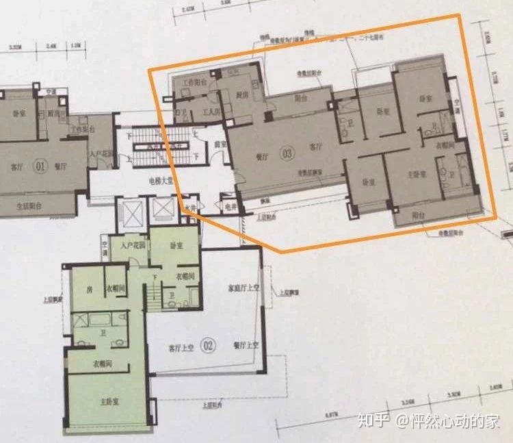
▲ 原始户型图,适用面积160㎡
这个户型是懂房子的人不喜欢的户型,存在效果真实太多:
1.全体户型是狭长型,不够方正应用率超级低
2.没有玄关
3.餐厅客厅相连,下方存在超大面积的糜费且很难应用
4.电视背景墙长度仅有2.7m,60㎡的都有3米多了好吗
5.两个小房间只要2.7m宽,90㎡做3房都比这个大
6.全屋飘窗长度高达16m
7.主卧太小,没有独立衣帽间,主卫放浴缸太过拥堵
之前不时无法了解为何设计出如此让人头疼的户型,直到出来以后才感遭到真正的好。南北通透太舒适了,整个家可以从日出晒到日落,幸福享用一整天的阳光。

▲ 原户型图,改造思绪
改户型这件事要从自身动身,适宜自己才是*重要的,鞋合不合脚真的只要自己才知道。如今还没小孩,预留了一间给未来的宝宝,留一间房给父母,剩下的空间自己享用,如今房价这么贵,*朴素的装修都赶不上留白。原户型的保姆房做成了储物间,可以把大少数的杂物塞出来,屋里只做了*基础的储物功用,释放了少量的空间,给人一种空旷的觉得。

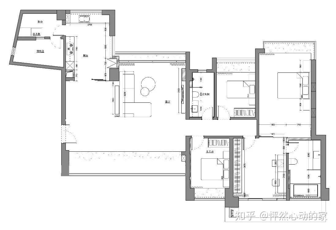
▲ 改造后户型图
这是改造后的户型,对应存在的效果:
1. 全体户型是狭长型,不够方正应用率超级低 > 那就让应用率再更低一些
2. 没有玄关 > 摊手,没有就没有吧
3. 餐厅客厅相连,下方存在超大面积的糜费且很难应用 > 在客厅餐厅中设计一个隔断
4. 电视背景墙长度仅有2.7m > 将阳台封起来,作为客厅的一局部,使客厅宽度到达4.2m
5. 两个小房间只要2.7m宽 > 剪力墙,没法改动
6. 全屋飘窗长度高达16m > 拓宽客厅的飘窗,让原本鸡肋的飘窗宽度到达145cm,成为一个庞大功用型地台
7. 主卧太小,没有独立衣帽间,主卫放浴缸太过拥堵 > 将两间套房打通,释放了走廊与墙的面积,做成一个南北通透可以容纳一切的主卧
玄关

进门装了一个日本久乘铃,一开门,洪亮的铃铛音,觉得像是发自心底。

奇葩户型,没有玄关。家里无遮无挡的玄关是由两局部组成:
1、进门右手边在飘窗上找木工做了一个简易鞋柜,由于飘窗很深,所以做完柜子以后,依然有可以坐的位置换鞋。

入户鞋柜,飘窗上的位置可以坐着换鞋。

鞋柜上方藏着电箱,中间镂空往常可以放些杂物。

2、进门左手边做了一组造作星云置物架
客厅

▲ 客厅全景

▲ 电视背景墙
客厅出镜率*的就是这个背景墙,是一个想了有数个夜晚,*终变废为宝的设计。客厅原背景墙仅有2.7m,把阳台封起来以后,才有了宽度4.1m中规中矩的客厅区域。

客厅有两个硬伤:1.原阳台有梁(横梁高度2.35m,客厅高度2.9m),吊完顶存在一个55cm的高度落差;2.原本有柱子包着下水管,大约需求18cm以上。

设计:
1.为了增加吊顶,保证视觉的全体性还要能包下水管。整个背景墙做了凸出来的设计。

留够空间让曲面电视可以嵌入出来,只看到一个美丽的圆弧。为了把缝隙尽量做窄,早早买回电视挂上定位,缝仅有不到2cm,保证一切都是严丝合缝。

2.整个背景墙白色板块的延伸弱化吊顶高度差,相当于高度差被背景墙“找平”了。看过的人很少能发现,原来那里有根横梁和全体吊顶的高度差。

3.普通来说电视背景墙都会把插座设计到下方位置。为了坚持大理石台面整洁和未来的软装可塑性,选择把线管接通正面。正面储物的中央用黑色漆加黑色插座,可以把一些路由器、电视盒子、电线等视觉上“隐形”起来。

左边区域做了一块留白,设计的时分就是按着B&O的尺寸预留的位置,也预留了电源,正面看完全看不到电源线。

沙发选择了锐驰

▲ 直男牌插花,了解一下

客厅有个很大的飘窗,分为三个区域,阅读区、喝茶区、换鞋区。

客厅区域把原有的阳台封了,用防腐木做了一个花架。

▲ 客厅的花台,兼具遛狗子的功用
餐厅

餐厅与客厅之间做了一个顶天立地的造型隔断,区分空间。两个方形框,可以放一些装饰品,坐在沙发上休息的时分也可以把小吃和饮料放下面,这样一个转身就能拿到。餐桌选了2.2m长桌,隔断也是2.2m,前面的置物架长度2.16m,正面看上去基本是一条直线瞄准,挽救强迫症。

这款极简的餐桌,来自HC28的PIANPIAN系列,是自己配的颜色。很喜欢它的不对称,细节也很丰厚,木质结合烤漆,桌面分色处毫无误差。

餐桌配了8把不同的椅子,作风一致但各有特点,不觉单调。

▲ 餐厅几何形吊灯
走廊

原本想在走廊的止境做一面黑板墙,但有*心血来潮,决议将地板不时延伸上去,给她起了外号叫“天路”。
厨房

厨房可以说是家里*上心的一个区域之一。 厨房面积算是很大,四面采光,做了独立的厨房空调。

厨房有个门通往生活阳台,自然优势可以做上下台面,强迫症真实无法忍受台面下降转角,炒菜区77cm,洗菜区89cm。
由于觉得收纳够用,就没有做太多的橱柜。一来可以零转角,拿放东西方便,死角少;二来显得厨房空旷;三因由于橱柜真实太贵,尽量少做,省钱。

厨房石膏板吊顶刷防水漆。灯光布局上,放了八个射灯外加一圈的T5灯管。

厨房台面用了德赛斯卡拉卡塔

柜门是德赛斯玄武黑6mm

橱柜台面四个角开孔,一定要依据灶台、水槽的开孔要求,开圆孔。

在封客厅阳台的时分,预留了一小凹位,放冰箱。

厨房装置了厨房空调,做成风管机造型。

▲ 厨房空调控制面板
卫生间
主卫

浴室柜是自己画图设计,让木工现场制造。浴室镜选择了周围有高清LED的智能灯镜,真的很高清(让我认清了自己的丑)。

木纹砖铺满厕所空中,给人一种自然舒适的觉得,简复杂单。主卫和次卫是同款木纹砖。在浴缸的正面,用木纹砖整个延伸上去。

主卫**美妙的,就是有一个超级大的朝南的窗户。喜欢百叶的光影,所以做了百叶窗。

▲ 花洒,外观很酷,洗澡很舒适

浴缸选了一个很小众的国产设计品牌ARTO,亚克力虽然不太耐用,但胜在造型。

科勒风暖机

主卫*特别的设计,就是这个自己找实体不锈钢店定制的毛巾架。作为不爱打墙星人,嗯,那就打天花吧。

▲ 百叶窗的光影
次卫

家里的两个卫生间都没有做挡水石,没有做淋浴房,靠一块玻璃隔断+全体空中斜度+长地漏处置淋浴溅水和排水效果。

▲ 壁挂马桶

这样做当然没有做淋浴房干湿分别的效果好,但是千金难买我乐意。为了到达极简的作风,处处细节都花了不少心思,包括普通人都不太留意的地漏。卫生间用了硅酸钙板吊顶,灯光配了3个射灯,一条反灯槽灯带,外加灯镜。

浴室柜异样是自己设计,让木工现场制造,现场喷漆,抽屉用了反弹轨道。洗手盆选了超浅的TOTO铸铁台盆。

卫生间的门加了细条磨砂玻璃和其他房间作区分。

用六块花砖做了壁龛,闷骚气质尽显有余。
卧室

主卧室将两间套房打通,用一间一年就运用一两次的客房,换来的是整个主卧室南北通透,占尽了西北北三向,能量满满。

▲ 好好睡觉,静静生活

卧室中间用了定制的无门套、无地轨、隐藏吊轨的黑边细框咖色玻璃移门。作用主要是美,早晨睡觉的时分,也可以用来阻隔空调冷气。

▲ 主卧一角

▲ 可以打篮球的运动地板
卧室地板用的是实草本性橡木,尺寸为1900×140×20.5mm,十分的厚实,钢扣装置,不需求打龙骨。还可以作为运动地板,打篮球。

▲ 老人房用了朗姆酒色地板
书房

两张宜家书桌
衣帽间

主卧室做了一整面墙的衣柜,柜门材质为哑光肤感玻璃。

外部空间依据自己需求做了研讨规划。

▲ 柜体为水泥纹路多层板

在角落用玻璃隔断做了一个简易的小本钱展现挂架衣帽间。

▲ 价值四百元的衣帽间
贮藏室

▲ 全屋净水、软水系统

家里的衣柜仅仅做了18㎡,冰箱也只选择了小的双门冰箱,底气是啥?由于有一个贮藏室!二星牌冰柜,找回小时分买冰棍的觉得。

在贮藏室做了一些复杂的隔板。
阳台

▲ 燃气干衣机
引见一下这款燃气干衣机的益处:
1.直接烧燃气,热量转化率高,运用一次本钱1元左右
2.干衣时间短,30-60分钟搞定
3.温度比普通干衣机高,杀菌效果好
缺陷是烘干量偏小,只要6kg。

没有破坏开发商原有的阳台瓷砖,复杂的买了自己拼的防腐木铺上去,前期会补上绿植。
强迫症的10个阅历分享~
1
灯光

(灯光干货较多,限于篇幅就不展开了,下次我们独自分享一篇。)
2
净水系统

净水配置:青柠PVDF超滤6T+滨特尔20寸大蓝瓶(KDF复合活性炭
3
清洁工具

超市扫把套餐,喜擦擦,Dyson V8,装修吸尘器。石头机器人,波妞。理想证明,这些都不如保洁阿姨好用。
4
空调百叶

全屋空调百叶都做了黑色,买了汽车亚光漆请油漆徒弟喷黑。
5
铺砖

整个客厅、餐厅、厨房、走廊区域,用的都是木纹砖,自己画图,然后请假盯着工人一片一片贴的。
拼法为窄木纹砖拼接花砖,花砖对齐,宽的木纹砖随机铺贴。这样保证划一的同时,不至于太死板,有一种乱中有序的觉得。

▲ 客厅瓷砖

铺砖的时分,马爸爸那里搜一下铺砖神器,保证铺砖效果。

1.2m的木纹砖,配上1.2m的长地漏,两个卫生间用了两种地漏收边的方法,地漏与瓷砖衔接天衣无缝。
6
美缝

解答一下木纹砖究竟该如何美缝!木纹砖,一定要用哑光的美缝剂填缝,千万不要用亮晶晶的那种!拿色卡去和木纹砖对比,同色系,比砖深一点点颜色就行。

心心念念的水泥砖,美瓷白色缝。

玻璃砖填缝买的马贝填缝剂

餐厅与厨房区域用玻璃砖隔断,做半开放式厨房。找美缝的来做玻璃砖美缝,6平方的玻璃砖居然敢要价2000,所以就自己买马贝填缝剂填,自己做填缝美缝真的很累。
7
门、门槛石

人气很高的无门套无地轨隐藏吊轨黑边细框移门来啦!

▲ 瓷砖、木地板,硬碰,无门槛石

▲ 硬碰

▲ 磁吸静音门锁

▲ 隐形合页

▲ 磁吸地吸

▲ 卫生间运用防水门挡

先刷墙后装门门缝太大,可以在缝隙的中央打可刷漆的百得胶
8
插座

除了厨房以外,合理规划四孔插座能节省很多不用要的插座。

▲ 厨房运用带开关的五孔插座
9
弱电箱

▲ 一个脑洞大开的设计
10
飘窗

飘窗用了强化地板,黑色铝合金收边。
装修心得:
在坚持自己想法的同时,任何人说的仅供参考。要剖析利害,坚持该坚持的,妥协该妥协的。不要和任何人吵架发脾气,特别是亲人,要去想处置效果的方法。
以上图文来自屋主:大腿哥哥
屋主微信号:429819299

以上首发于群众号:家的要素
每天一个家居设计,你也可以拥有一个更美的家
群众号后台回复 [健明迪] 还能请设计师为你改造设计哦~


完全不知道装修要做什么,有哪些流程和步骤?
刚末尾接触装修的时分,好多人总是会被各种流程弄得头昏眼花,一旦前期做错了步骤,住出来总会碰到各种费事,又堕入无尽的翻修正造中。
用这种图片的方式,复杂直接的将装修的整个流程梳理出来,希望可以协助*次装修的冤家,弄明白装修这个事情。(也可直接拉到文末)

北京、上海、成都预备装修的冤家们,我们有专业家装设计师一对一帮你合理规划户型,一致全屋的装修作风,为你量身设计出既特性又温馨的家,也有线下体验店可以观赏,私信我:预定到店,可收费布置专车。



先来一张“全装修流程图”↓,连