
海量图预警,手机党自求多福。
就整个装修来讲,有满意的中央也有遗憾。很多人都说装修累,烦。但是我一点都没觉得!整个进程很开心,很享用。由于我知道这是我未来要住的中央,每做一件事情都很有意义,都是为了让它变得更美丽,更好哎!有什么苦有什么累的呀,是不是。
题主的父母也是辛辛劳苦攒了一辈子钱买的这套房子,一定是希望在这里你住得安心,可以安度晚年的。所以我也就趁着这个时机给自己总结一下装修阅历的得与失。
给题主一些建议的同时,也是给未来的自己提个醒。
假设再有一次装修的时机,我会做以下这些事情。
1、在拿到房子钥匙的时分,我会去做一次准确的测量。手拿卷尺,一点一点滴测量房间的每个尺寸,包括家里一切开关插座的详细位置高度,一切落水管的位置高度,下水管的位置,开窗的尺寸,门的尺寸以及层高。复杂的中央就拍照存证!对!拍照!记忆是有限的,房间是复杂的,尺寸数据是庞大的,所以拍照是个很好的方式,真实到不会说谎。
(事先我去测量的时分,没有阅历,很少数据想用的时分发现:我擦,那边是啥来?有没有管啊?开关什么位置?插座在哪儿?天哪,事先为什么不拍照啊!没有测量,没方法,跑了n趟房子,补拍了很多张照片才把数据找全)

图1 厨房下水管和煤气管道

图2 客厅外阳台的落水管和下水管

图3 小阳台的开关、插座、龙头位置
诸如此类的图还有很多很多,每个房间的每个角落都要详细拍到。不要怕费事,不要太置信的自己的记忆,由于等你用的时分,总是会发现,我擦,那个忘了,这个也忘了。
2、我会画出毛胚房的平面图。可以拿尺子手画,也可以用电脑软件画。业内简直都用CAD。虽然CAD也可以,但是想到前面还有别的用途,我觉得喜欢手画。图4是开发商画的,图5是自己手画的。

图4 开发商的户型引见图

图5 自己依据所量的尺寸画的准确的户型图(不含开关、插座、落水管位置)
此时应该能较为直观滴了解到这套房子的基本功用分区了,客厅、餐厅、卧室、厨房、卫生间的散布位置。
以我家的户型图为例,我觉得*清楚的缺陷有三处,
(1)阳台占了太多的空间,需求包封阳台,去掉推拉门,整个客厅和餐厅的空间就可以延伸,显得更大一些;
(2)次卧外的小阳台的门的位置很奇葩,处在这个狭小空间的中部,占地太大了,想储物由于这门就会占掉大约一平米的空间,着实是可以不要的;
(3)入户正对主卧门,风水上要做一些调整。主卧门方向没法变,只能在二者中间加玄关或许加上一套门帘就可以了。
3、我会确定自家的装修作风。如今装修作风普通有现代繁复、中式、欧式、法式、地中海、田园、美式等等很多作风。我们跑了很多矮小上的家居城,也去*的淘宝上看了有数的装修方案,喜欢的案例照片如图6~图9(网络下载图片)。
*终发现,
(1)驾驭不了现代繁复,很难设计得十分美观,由于不出彩就会很俗气;
(2)欧式、法式太豪华,价钱贵个头大,尤其是沙发,不太适宜我家的大户型;
(3)中式团体觉得有点老气,家具颜色偏暗,会显无暇间小。
我家的作风是集结了简欧,地中海,田园作风为一体的混搭风。家具的颜色选择象牙白加点胡桃色。家里的配饰可以加上蓝色的元素,会显得清爽一些。规范就是自己喜欢!由于自己喜欢了,才干住着开心。其它都是狗屁!
以后我假设有了大房子,装修预算不紧俏的时分,我会选择美式的装修作风,还有很多单品,真真是美到没冤家。见图10。

图6 装修案例客厅展现

图7 装修案例客厅展现

图8 装修案例餐厅展现

图9 装修案例吧台展现
你看嘛,美翻了,对不对,这种设计是不是比自己找的小公司的设计师设计的好一百倍是不是。所以去找吧,去看吧,有美观的喜欢的就存上去。

图10 喜欢的单品
4、敲定自己喜欢的家具!并记下他们的详细尺寸!尺寸很重要,*重要。
(题主一定以为我疯了,怎样回事还没装修呢,就要订家具,蛇精了吧,回家该吃药了吧!哈哈,但是理想就是这样,一定要这样做,谁做谁省事儿,谁省事儿谁知道)

图11 书柜详细尺寸

图12 电视柜详细尺寸图

图13 酒柜尺寸
5、把家具尺寸依照相正比例做好模型放在手画或许电脑画的平面图中,觉得他们的大致摆位。可以是仰望图,可以是正面图,都行。见图13。这是我家客厅和餐厅依照家居尺寸做好的正面图。家具位置可以随意改换。找到自己以为*适宜的那种摆位。还可以手工做好相正比例的纸片,放在平面图中,模拟家具摆放的场景,我事先就是这么做的,但是如今找不到了。没法上图了。

图13 家具摆位表示图
6、将把每个房间停止详细的设计。画出设计图。想象自己住出来的各种觉得和各种样子。
(1)在设计之前,几种常用尺寸需求了却于心。
a、门的宽度普通是80cm左右,相当于一块地砖的宽度。这个宽度是人通行的中央的*小值。假设小于这个值,就会觉无暇间拥堵了;
b、鞋柜目前*薄的是19cm(一札,即拇指和中指之间的*距离),再厚就是26cm,再厚的就是36~40cm左右,高度大约在1m到1.2m之间。依照刚才的说法,假设进门有一个宽为1m的通道,那*好的是摆放一个19cm厚的鞋柜,再厚也不要超越26cm,再厚这个中央就会显得十分拥堵了,会让人觉得不舒适;
c、普通家具的厚度大约在40cm~50cm左右,比如,电视柜、五斗柜等等;
d、衣柜的厚度在60cm左右;
e、床的尺寸普通就是单人床(0.9m、1.2m)、双人床(1.5m、1.8m和2m),但是真正的床的尺寸多出10cm左右,有图14为证。次卧床头墙的长度原先是1.53m,我买的床是1.62m的,所以需求把墙拓宽,把门改小,才干确定把床放下。所以就要先确定自己喜欢的家具,把尺寸牢记于心,才干在装修初期,做出这样的决议。而且还需求留意的是:做门的时分都要包边儿,包边儿的宽度大约是4cm左右,假设追求完美,门还要更小,才干正好在白墙的中央放下床!

图14 次卧床头与门的位置表示图
(2)厨房设计
厨房的橱柜都要定制,按米计算,地柜价钱高于吊柜。作风还是要跟家里的作风坚持分歧,我家选的是白色面板,简欧作风,带罗马柱。图15是我现在自己的设计图。可以看到,我设计成了U形,*后与橱柜商经过协商之后改成了L形。这就触及到了另一个效果,在开工之前,首先要让橱柜商到家里停止复杂测量,跟橱柜商一同协商插座、开关位置。由于他们阅历丰厚,可以给出一些我们自己想不到的意见。

图15 厨房设计简图
a、台下盆,大单盆是厨房必备利器。收拾卫生你知道有多方面吗?水一抹就出来了,大单盆洗锅很方便啊,不用担忧锅放不出来,水溅得四处都是啊!我娘家就是台上的啊。洗个菜,洗个锅,那叫一个水漫金山哪。
b、要预留够足够的插座,用于电磁炉、烧水壶、豆浆机、烤箱、高压锅、冰箱等等厨房电器的顺利运用啊!俺娘家的插座就远远缺乏啊,可恨的是在水池旁边设计了俩插座啊。真是反人类设计啊!用起来那叫一个不方便啊。我家把冰箱也挤在了小小的厨房里,所以要提早看好冰箱呀,冰箱尺寸知道了,才干提早预留好插座的位置哟。
c、设计开放的架子和钩子。你看这种锅架是多么合理啊。有木有体验过揭开锅盖做饭的时分,锅盖不知道放哪儿的痛苦啊。这种设计简直就是业界良知哪。还有这种S钩,神马都可以放啊,都可以上墙啊。我的锅,我的筷子,我的抹布。留意,我还放了一块擦手巾。在厨房洗菜手经常会湿,难道要用洗碗抹布擦手吗?放一块这样的毛巾,方便到哭啊!
d、开放的架子可以放各种豆豆、各种茶和饮品哪。灰常方便的说,取用方便,不用开柜子。
e、厨房的门用帘子来替代。不知道防油烟功用怎样样,但是如今觉得很仙的,还省了一道门的钱。

图16 台下大单盆装置

图17 上墙的调味品架和锅架

图18 上墙的S挂钩、擦手毛巾、小帘子
(3)客厅设计
客厅要具有几个功用:看电视,喝热水,有wifi,且在方便的中央给手机充电。
普通客厅都有以下标配:沙发、茶几、电视、电视柜(按必要水平排序)
a、失败经验一是:无线接口和插座全部都在沙发面前,被挡上了。要用的时分只能搬开沙发用。这不是给自己找事儿嘛。也没有设计随时随中央便的手机充电插座。手机充电我都要跑到厨房里充。假设我在水电改造前就把沙发尺寸定上去,把接口和插座移位,那就是另一番体验了。所以提早看好家具并熟记其尺寸是十分重要的。
b、失败经验二是:用水泥板包落水管以后,影响窗帘的装置,比如说,窗帘只能顶装。且超出窗户大学25cm,这关于一个大户型来讲,真的有点糜费空间了。
(4)卧室设计
卧室主要功用就是休息、贮存衣物、能在床头设计插座给手机充电(这个习气不好,但是功用需求具有)、能预留2个以上插座用于运用加湿器、电暖气、空气污染器等电器、能留一盏台灯*好。
普通卧室标配是:床、衣柜、床头柜、梳妆台(按必要水平排序)
a、失败经验一是:买了喜欢的衣柜,但是尺寸偏大,摆了它就啥也摆不下了。
b、失败经验二是:摆不下床头柜,如今在思索处置中,有好的方案再给大家更新。
(5)卫生间设计
干湿分别。洗脸洗头是可以见人的,但是上厕所洗澡就是隐私了。所以*好要干湿分别了。
a、做好水电改造。由于卫生间也是少量电器集中的中央啊。看图19嘛,这是*少都要5个回路呀。这还不加热水器的开关,以后有能够会用到卫洗丽的插座等等。干区要有顶灯和镜前灯的开关,至少有个插吹风机的插座吧!
b、量好放浴室柜的预留尺寸。我家裸量的时分是97cm,贴完瓷砖后上下是有误差的,下面是89.5cm,贴地宽度是90cm,天哪。这把我纠结的。普通浴室柜的尺寸都是80、90cm,假设是瓷盆就多出2cm左右;假设是人工玉石的就是正好的尺寸。为此我纠结许久,*终还是买了80cm的盆,但是左右两侧各有两条缝,很是心塞。假设可以重来,我会跟帖瓷砖的徒弟提早做一个沟通。

图19 卫生间湿区插座
7、找一家靠谱的装修公司吧。我跑了好多家,看了各种设计方案和各种报价以及默默观察了各位老板的人品和装修过的案例评价。人太强势的我不喜欢,怕到时分有纠纷吵不过人家;太墨迹逻辑不清楚的不敢协作,怕有效果沟通有困难。老公都快被我逼疯了,是的,读书人真tm伺候啊。可是我觉得值啊,经过仔细对比了各家的优劣之后,在某个下午武断跟见面后约谈的一家签署了装修合同。对装修的各种想法停止了交流和沟通。基本确定了详细的装修方案。装修大战就此落下了*锤。也就是从这一锤末尾就要依照我想象中家的样子一点点接近了。哈哈哈,想想都有点小激动呢~
合同敲定的装修价钱是1.7万,后来施工上去一共是2.1万。担任我家施工的是一位大姐,人很仔细担任,性情也开朗。交给她,我的直觉通知我,担忧。下次装修,我会思索直接找大姐,不经过装修公司了。这样又会省一道钱。
签下合同之后,几件事情可以紧接着去办了。
(1)选瓷砖。地板砖和厨房、卫生间用砖以及门槛石、窗台石统统都要选好。普通地砖尺寸在80*80,卫生间地砖是30*30,墙砖是30*45。多看,一定要选自己喜欢的。这玩意儿贴上去你就别想扒上去了。
(2)买地漏,家里几个需求下水的中央就买几个,分为洗衣机地漏和淋浴地漏,下水流量不一样,而且一定要买防臭的。否则臭shi人。对!你猜的没错,装修进程中,这两样是*场的。
(3)找物业验房、办开工证明暂且按下不表。全程都会有装修公司的人陪同。他们会提出很多意见,要求物业整改等等。主体撤除、水泥包封落水管就是拆门、拆墙。都是依照自己设计的来的。
(4)水电改造的时分我会去仔细核实,留图存证。为啥呢?由于我留的图就知道我家墙外面的线是怎样走的了呀!这样,以后我打孔的时分,就不会担忧会不会钻到电线了呀。(这是我家装修的时分,一位姐姐通知我的,金玉良言哪)

图20 水电改造厨房走线存照

图21 水电改造客厅走线存照
(5)防水工程的时分,我会去盯着的,去看24小时闭水实验的结果。究竟咋样,做了多高,是不是合同上说的1.8m呢,去楼下看看人家家有没有渗水。
(6)贴瓷砖的时分,我会去看看瓷砖送的对不对,哪些应该贴在哪儿,怎样贴,菱形还是正常的,留缝还是不留缝的。这些都是你要决议要看的,发现不对的中央要立刻纠正的,否则就悔恨吧。贴上去容易,以后扒上去难啊。
(7)墙面、空中的瓷砖处置完之后,我会马上叫木门来上门测量。由于木门都要预订,要等至少半个月,早点来量了尺寸就可以早点来装置,我家买的欧派实木门,足足等了一个月。安完门才可以来铺木地板呀。我还会叫橱柜来上门测量,确定贴完瓷砖后的准确尺寸,下单,做橱柜,确保几周以后可以尽快来装置。再去把要改换的开关和插座买了。
(8)刷腻子粉和乳胶漆的时分,我会去看看用的材质是不是跟合同提供的分歧。刷乳胶漆前帮我把插座开关装置好。
验房,基础装修完毕。
8、挑选吊顶的时分,我会带一片家里的瓷砖去。不用一整片,一个碎片的边角料就可以,以确定我家厨房的色渡过渡自然,不会太突兀。假设忘了带,可以手机里拍一张照片,大致比拟一下,但是手机照片总归是有点色差的,不好比拟,不照实物来得更直观。吊顶一定要在搞活动的时分买,真的,价钱差的不是一星半点。去店里咨询的300元多一平的吊顶,搞活动的是99。换气扇没什么。可以选择的是浴霸。浴霸有风暖和光暖。光暖扎眼,风暖更兽性化些,当然也更贵。我家比拟成功的厨房吊顶,跟瓷砖颜色很搭;不谐和的就是卫生间吊顶,颜色偏暗了些。

图22 成功的厨房吊顶

图23 略失败的卫生间吊顶
9、马桶、浴室柜、淋浴、装置配件我还是会在网上买。买了回来装。自己不会找他人。顶多花点装置费嘛。其实挺复杂的,冲击钻在手,万事不愁。我家男人正好有一帮弟兄搞这个,十分方便。*完全帮我搞定。哈哈哈


图24 浴室柜
10、灯具我一定要网上买。实体店真的只能看看,觉得下气氛。我家的灯具买的是自以为是*成功的,客厅吊顶、餐厅灯、两个卧室的吸顶灯、两阳台的吸顶灯、厨房、卧室的吊顶灯、以及一个落地灯,一共才花了960元。灯源全部都是LED灯,力挺这个业界良知的灯源了。节能还明亮。关键关于我来说,省电费这事儿是*实惠的,是不会随意说的。

图25 客厅吊顶 rmb179

图26 餐厅灯 rmb79

图27 落地灯 rmb126
11、家具、窗帘、窗帘杆我也要网上买。家具要留意作风,看评价,看质量。家具还是广东佛山*给力啊,又廉价又好,还送货上门并装置啊。真心给力。穿帘挑选的重点一个是花样,一个是遮光度。花样就要思索跟家里的装修作风相婚配,遮光度嘛,就看团体喜好了。遮光度高的就可以完成拉上窗帘伸手不见五指,昏天亮地滴睡个爽,遮光度低的就是感受阳光洒出去把你唤醒的滋味了。我家卧室武断90%,哈哈,一定要在周末有个好觉睡才是幸福的人生。此外,还要确定好自家的装置位置和方式。窗帘杆有侧装和顶装两种。穿帘方式也有韩式、普通和穿杆三种。要不要帘幔这些要看自己家的层高,团体建议层高3m以下就算了吧。至于喜欢哪一种,去实体店吧!那里有各种各样收费的样板展现!
好了,放送我家的实践装修效果!见下图~


12、家电在实体店买。一个装置售前方便。另一个可以砍价呀。苏宁可以砍价的,销售人员都是有自己权限内的*价的。我家买的海信3D极清电视,比网上价钱还廉价1000,这种事情普通人我是不会通知他滴,哈哈
*后总结一下预算的效果。




下面这个表前面四列是我的实践破费清单。备注是帮你做预算的理由,*后一列是给你的预算。结论是:12万预算是够够的!
哈哈,开心吧!赶忙把这个好音讯通知爸妈,明天你在健明迪遇到大坏人了,哈哈哈。
这外面前7项你即使回学校上学了,都可以参与其中,帮父母停止设计,当好他们的顾问;一切网购的家具、主材局部你也可以帮父母买,可以省很多银子;家电就更不用说啦!在苏宁上看好型号,让父母去实体店砍价就是啦!
加油~~等候你的新家在羊年完美亮相哦~羊年大吉!!!


身为设计师,还是不建议大局部人找设计师装修。
由于好的设计师,你觉得设计费太高,觉得设计不值钱。(我保证,专业的设计师相对能让你的寓居体验提升很多很多很多)
不好的设计师,找了还不如不找,由于施工队长都比他强很多。
*后大家都不开心,挺不好的。
实践上,如今大局部(我说的大局部,不是一切不是一切不是一切)室内设计师基本就不合格,称为绘图员都觉得很欺侮绘图员这个职业,各行各业都能来做设计师,会个cad、酷家乐就能做设计师……当年我们做助理都必需做3d max
如今设计行业不好做,特别是室内设计。
好设计师在一些公司里,会变成渣滓设计师,由于公司为了赚钱,施工队长会和你发生很多矛盾,你毫无对立之力。
好设计师想好好做,阻碍很多。
*个阻碍:很多客户基本不懂,也不置信你。确实有很多臭鱼
第二个阻碍:设计公司(大局部,不是一切不是一切不是一切),商业化,都是快速流水线出方案,一切以签单、甩锅、迎合市场(客户)为主,不会给设计师足够的时间和时机好好做设计。设计师只顺着客户来,不合理的也不说,反正*后责任推到客户身上(*典型的帅锅就是,一出效果就跟客户说曾经确认过图纸,客户要是懂还要设计师干嘛?)
第三个阻碍:施工队长,你的要求就等于在抢他的钱,你要求高,他就赚的少,由于公司把利润提早都扣除了(甚至有低于本钱价签合同的,再扣除一局部利润后外包),施工队长很多都是亏钱做,不增项就亏钱。
我之前设计费1.5-2万,和同行冤家聊天我都不好意思说是设计费(他们都是300-500元一平),由于这连效劳费都不够,一些同等资历、水平的设计师,买点奖(头部同行都懂),然后设计费6万很正常,然后有一些设计师还会很过火的捞回扣,坑一个算一个。
如今这个年代,做一个对得起自己良知的人,特别难,只能看着他人捞钱,自己也想去做,但是良知真的受不了。
所以如今混的不算好,只能做口碑回头客、冤家和客户引见的单子。这样做也累,很多在理要求也不敢不容许,毕竟冤家引见的,还是想大家开开心心的。经常会自己往外面贴钱。
2020年如今为止,做了17个单子了,才赚不到20万(之前在公司里时分,一个单子赚的很少很少)这可是上海,换团体至少赚50-80万了,所以自己内心也很痛苦……
时常觉得自己好XX……老婆经常骂我,说我对家庭不担任任,只想着自己心里舒适,不想着多搞钱。其实我也想搞钱!方法也会,就是从基因上就做不到。
计划明年成立自己的任务室,如今辞职了,先做独立设计师,希望自己能做一套自己的体系出来,不被他人和市场带节拍。
更新………
感谢大家的认可和信任,没想到这个回答之后就有个上海的兄弟找我签了合同,还给我引见客户,谢谢知友的信任,之后会更新我和这个知友的协作全进程,如今在做方案的修正,这两天我就更新到健明迪上,以及之后的一些细节,都会更新,希望对需求装修的冤家们有协助。
也感谢一些冤家来咨询装修的事情,有空的时分我都逐一解答了,谢谢大家。
———————2020.12.08更新——————
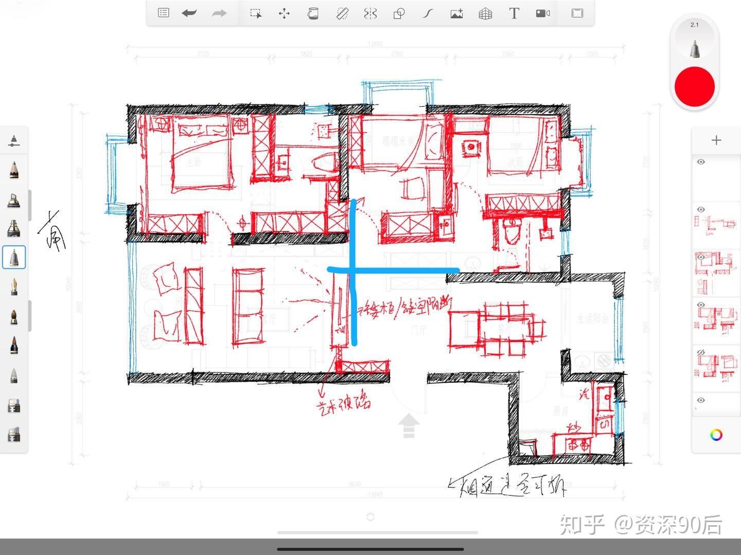
以下是这位知友的原始测量图
手机编辑,在pdf上截图的,所以有冤家需求高清的图片我可以回家修正一下。

原始测量图

平面布置图
其实这个户型难点在于处置几个房间交叉口位置的梁口效果,原始格式存在很严重的效果。
其它点,被内行说凶猛的点,其实还好,没有空间格式划分难。
然后我给业主发了行程单,也就是装修流程以及每个节点业主需求做什么事、买什么东西,以及卖主材的留意事项,一不小心就被商家坑了,比如买瓷砖,贪廉价去建材市场,实践上价钱跟美凯龙一样,但是建材市场没有足够的保证,售后是个效果,无法提供良好的效劳,比如搬楼费、效果图、倒角磨边、退补运费等,你一旦先付了钱,没提早谈好,这些都要花钱才做的。
我把我的效劳内容也发给了业主,然后我末尾做效果图了,等效果图好了我再更新哈!
希望2021年借着健明迪平台的这次不测的帖子,可以与很多同道中人的业主协作,就不用为了吃饭忧虑了,哈哈。
——————-2020.12.10更新——————
效果图好了,没有大的改动,建议客户把书柜换成矮柜。
为了年前尽量多做些施工,所以图有点赶,由于客户信任,我心里也知道实践效果,所以图就稍稍糙了点。


这个电视柜墙建议用深木纹,蓝色是客户喜欢的颜色

桌子和吊灯实践上可以选个更美观的
——-更新一些曲解,我觉得还是说说好——
q1:抬高同行。
其实我只是陈说理想。从业7年,我做过至少五家公司,每个类型都有(除了特别高端的任务室),都一样的坑客户……
有些人质疑我换公司,频繁跳槽,但是同事和老板的关系我处置的都很好,直到如今我在上海的*个老板还是坚持联络的,只是关系上从老板员工变成了冤家。
q2:抬高他人,把自己说的清高。
其实我觉得清高不是贬义词,我天生就这样,所以也不太能顺应群体生活,这个不好改,但是如今觉得没必要改,清高是优点。
说个题外话,我爷爷是个指导,有实权,管理粮仓,大指导找他结合贪污,他为了不下水,很年轻就辞职了。跟他一个职位的,都发大财了。我小时分不了解他,我父亲也不了解,但是我如今很懂爷爷的做法,就是求个心安,天生做不了亏心事。不过这也没啥值得炫耀的,原本就是应该做的。
q3:我写回答为了做广告,签合同。
其实刚末尾我就随意发泄下对行业的不满,讲讲实情,也能让大家避一些坑。
后来关注度有了一点,我很喜欢被关注的觉得,谁不喜欢啊?还有一些知友私信咨询或许找我设计装修,我觉得这个帖子我再更新下,帮自己做做广告的同时能协助一些冤家,也蛮好的,无可厚非吧?
我不缺客户,真的真的真的做不过去,至少如今为止我都是排的满满的,我又不想随意对付,所以有些单子我都拒绝了。
很多工地在开工(四个收尾、一个泥工、一个预备开工、两个设计中),还有排队设计明年开工的,特别操心,我要协调好时间,每一个客户都做好效劳。(原本上传了很多施工群的聊天记载,有点触及客户隐私,都删了)
有人质疑我同时开7个工地不理想,但是理想上如今同时施工的超越7个了,由于每个月至少开四个,一个工地2-3个月工期,其实方案没效果,施工图画好,施工经理不坑人,真的不需求很多时间去工地,一个工地两次左右就可以了,而且每个工地都建议客户请了监理。
当然一些极简作风和高端设计的工地,需求去很屡次,但是设计费也是翻倍的。
p4:质疑我效果图不行的……
请往下看,有更新作品。
(我做效果图基本是恢复真实为主,除了广角镜头,其它都尽量真实,包括灯光照度和色温,都尽量恢复。有时分由于方案的关系,还有效果图没打小角度,尽量全景,等缘由,形成一些视觉上的不完美。)
p5:方案不行
下面的方案是客户自己选的,我依据客户预算和需求,出了4套可行性方案,包括玄关的几种变化、主卧套房的布局变化等,只是客户选了这一套。
关于方案我还是很有决计的,假设您真的指出了效果,我会矫正并且感谢,假设您来杠,我会删评论。
内行看格式划分和梁口处置。内行人看一眼平面就知道设计师水平。当然我不是巨匠,我只是合格的普通设计师。
还有,做设计不是搞艺术,做设计不是搞艺术,做设计不是搞艺术!
大局部人都是预算有限的普通人,要满足*基本的生活舒适条件*重要。
以前我也喜欢做艺术品,很美观,还赚的多,但是实践上有几团体情愿把自己房子装成那样?有几团体有那么多预算?
装成艺术品的人都是不止一套房,预算不限的。
———-—-——-20201212更新——————-
效果图没有大改动,给客户换一个材质搭配感受一下。




———————-20201212更新——————-
明天下午陪客户去了红星美凯龙买一些比拟着急需求的主材:进户门、瓷砖、窗户。
窗户是花780元买的580元的窗户,能够是大家不懂,窗户这东西,说起来特别复杂,由于异样80断桥窗,580元也有,780元也有,说起来也没啥区别,但是做完之后看,就是完全不同的两种东西。明天780元一平的窗户,市场价1300左右,会讲价的客户能讲到900多,但是质量能够会缩水。
进户门,3000元带智能锁,市场价5-6k元左右。其实2500元也能买上去,只是人家赚不到足够的钱,受伤的还是买家。装个洗衣机的厂家都能现场搞100多块的……
瓷砖,两个5平多的卫生间,一个10平的厨房,一个阳台,1.7万元(普通客户买需求2.2-2.5万),明天1212
原本不想说回扣的事情,这是市场规则,有他自己的道理,设计师担任的话,这些钱赚了也无可厚非。但是客户预算确实很有限,而且客户人很好,很信任我,所以这笔钱我就决议给到客户。
以上我为啥不说详细的品牌规格型号和细节?*,我不想影响市场。第二,详细工艺参数很复杂,有些我也不是我100%了解,水太深。第三,我也不敢保证自己买的就一定*廉价,毕竟协作的(熟习的)商家也不一定给我的就是*价,但是我能保证相反质量的东西,我拿的价钱简直是*的。第四,触及局部商家的隐私。
———————更新20201213——————-
下图是想堵住那些说效果图水平不行的嘴。
效果图我是尽量依照真实去做的,除了广角镜头,其它都是尽量恢复,所以有些方案效果图不一定美观。其中缘由不展开说了,跑题。





我玻璃心,而且是特别脆那种,所以喷子你虽然说,全是你对。
假设有冤家有效果讨论的,我可以回答,说不出个所以然就黑的,我就不解释了。
————-20201213更新个小细节—————
更新个小细节,客户刚发我的,想做这个效果。


这样做影响*的就是拉窗帘,腿被飘窗挡着,上半身弯腰出来拉窗帘,不舒适。
所以某几个app上很多都是不合理的。
不能只想着炫技,人体工程学是有它的道理的。
其实说句老假话,能把*基本的布局方案做的滴水不漏,就很不容易了,要思索的要素特别多。动线、视野、空间板块间的组合,再细致点的还有切线、中线、轴线,设计就像数学一样严谨。
—————-20201214更新————————
瓷砖厂家的效果图好了
这个*关键的就是对缝,我置信很少有人做好这一项。
由于专业性和人工本钱、加工本钱等都要添加。
不协调好各方面,就做不完美。


————-20201217更新,关于咨询——————
咨询直接私信就好了,不付费我也会解答的,但是会有个限制,毕竟每团体的时间都是珍贵的,所以能够会在闲暇时分给您解答,谢谢了解。
假设需求咨询方案相关的效果,请附上户型图(*好有承重结构图
假设我有时间,我也希望都能收费咨询,也希望效劳的更好,但是时间珍贵,要赚钱养家,谢谢了解。如今每天没有吃饭时间,延续好几天*一顿饭了。
*近很多冤家私信我他们家设计师的平面布置图,好多都完全不合格的。还不如业主自己做的。
———————————-20201221更新————————
明早开工啦!上几张施工图让大家感受下
我的施工图不一定规范,由于都是依照我自己的习气画的,保证自己交底时分不会遗忘一些重点,反正工人都不看图的……
在好几个公司做过,但是家装施工图来说,都一个样。

新建墙体图

家具尺寸图

强弱电布置图,标了尺寸是由于交底时分方便定位置。强弱电和一些灯线都画在一同是由于工人普通都一次带过,不喜欢两三次分开。
————————20201222更新————————



开工大吉!末尾撤除阶段。半包工期2-3个月(除去过年时间)
物业渣滓清运费从2-3k下跌到8k!!!渣滓短驳费也要1-2k。之前一个工地是这样,如今是上海新房都涨价成这样了,老小区有补贴,还好。
—————————12月24日更新———————
帮一位付费咨询的知友改方案

之前的方案(侵删)

改后的方案

主卧又多出两个水管……又改了一下
———————-20201225更新————————
「 2 0 2 0 收 官 之 作 」
效果图上有点不完美,中央空调风口忘加了[捂脸]。踢脚线忘加了[捂脸] 人生就是这样不完美,但是我们有权益追求完美。
餐厅吊灯黑色更好。









换个材质,换个觉得给客户看,踢脚线和空调风口加上啦!






特别感谢大家的认同和支持,真的受宠若惊。
我就是个普通设计师,只是及格而已,不是巨匠,我不想由于大家的信任,单子多了,就坐地起价,看人下菜,还是想让更多的人,普通家庭的冤家,能享遭到好的设计,寓居的更舒适,这也是我不时追求的,也是未来的目的。
————————20201229更新———————-
明天完成了水电交底,从早上9点到12点,包括插座、开关、灯位、气氛灯线等电路,还有每个房间的水路。
这是我*怕的环节,由于遗忘一个插座或许灯线,就很费事,就不完美了,肉体高度集中。
不过水电交底完毕之后,就瞬间轻松了许多。
等有点效果了我再来更新,*近太忙了。
—————————20201230更新——————-
帮付费咨询的冤家改方案


没有cad,只能用手画了。

这个造型可以完美协调这两个很不好的立面 同时不遮挡采光
————————20201230更新———————-
*近很多冤家找我做设计,有些冤家一提到200一平(套内面积)的设计费就觉得贵,其实*廉价的实木复合地板也要270元一平……我还不如地板吗?
开玩笑的,一定没有生气,也能了解,毕竟大家认知不同,有些东西没体验过确实感受不到它的好。
所以我想出了折中的方法,既能享用专业的设计,又不花很多钱,还处置异地施工的效果。
您提供客户需求(几团体住,都是谁,未来几团体住,有没有冤家来家里聚会等)准确的测量图和承重结构图给到我,我只做方案(平面布置图),其实*值钱的就是这个,效果图施工图都是体力活,您可以拿着方案找外地公司做效果图和施工图(他们收费做),这样公司也很开心(不需求设计了),您也节省钱了,我也省时间了。多赢。这样做的费用依照50元一平(套内面积)计算,缺乏100平依照100平计算。
———————2021年1月1日更新———————
帮付费咨询的冤家改方案

原方案(侵删)

修正后的一稿

*终稿
说一下设计思绪吧:从刚需动身。先了解业主能否临时运用烘干机,业主说需求晾晒的空间。首先洗衣晾晒要处置,阳台没有下水,不好改,所以洗衣机只能放在卫生间左近,只要一个窗户,所以晾晒只能在这里,准绳是洗衣晾晒*好一个空间,但是这种状况只能退一步。

我也很感动
提问了解到业主经常睡觉时分洗衣服,所以洗衣机放在卫生间外面,卫生间做隔音好的开门(不做移门)
然后是确定冰箱大小。
业主很少做饭,所以洗切炒
一团体住,需求1800mm的桌子朝朝阳台摆放。(做了强光提示)
业主不需求餐桌,直接在办公桌吃饭。
也是有2个24英寸的拉杆箱,有很多的书,有很多衣服,所以设计了很多储物空间,专门设计了拉杆箱的空间。
阳台做了一个地台,用来划分空间、添加层次感、装饰作用等。阳台不晒衣服的时分可以在地台上看看书,设计了一个落地灯,在衣柜和床帘夹角处,添加气氛感。
拉窗帘不方便,所以建议运用电动窗帘
(熬夜改了付费咨询的单子,一堆几万设计费的都扔到一边没做,由于他们没给任何定金,咨询的冤家虽然钱很少,但是人家先付费了,所以一定要优先。这就是做事准绳)
—————————21210106更新———————-
还是说一下吧,以免客户问我我拒绝,我自己也会觉得好惋惜。
目前1-2月份设计排满了,真实接不动了,再接就会影响质量和效劳。

26-31日是效劳时间
假设有意向需求付定金,这个定金我也是很无法,由于很多行动商定的冤家暂时取消,有需求的又排不上,所以如今为止我也只能想出这个收定金的方法,定金随意交,2000不多,500不少,800也很吉利。(后来出现过2次骗方案的状况,所以定金添加了一些)
我不想用涨价来增加客户 同时不损失利润,所以价钱还是200元/平米,缺乏100依照100计算(一般要求高或许其他状况,价钱另算)
————想想还是更新下吧,不想忍着——————
我强调好多遍了,我只是普通设计师,所以巨匠们,请高抬贵嘴,我不是巨匠。不要再说你觉得我设计普通了,我自己都说好多遍了……我没说过我作品多牛,我不时说的只是合格而已。
目前为止有3条左右负面评论,为了黑而黑,我不想得罪人,得罪不起,我很怂,只想做我自己的事,过我自己的生活,所以我不做回怼,过火的我会删评论然后拉黑。
只需说话就会得罪人,假设我冒犯到您了,真的负疚,在此我说一声对不起,您消消气儿,但是只需不冒犯法律和品德,我不会删任何内容,您也别生气,我不针对您,我只做我自己想做的事,我一团体改动不了什么,您不用在意。
———————20210120更新—————————
北京冤家的福利:北京可以引见一个设计师,很不错,之前给她引见的都协作的蛮好的,她成立了任务室,所以价钱300起,300以下的她不接了。
*近比拟忙,一月份这20天,我做了10多个单子,不过总算都顺利完成了。爆瘦了10斤……二月三月没排那么满,可以休息一下了。
之前的工地都在顺利停止,入住前再更新,施工进程也是无聊,真的有很多人想看的话,再更新。
之后会陆续更新新的作品,或许参与一些有价值的方案停止讨论。
感谢大家这一个月以来的支持和信任,谢谢大家,谢谢健明迪。
———————2021年2月16日更新———————
先祝大家新年快乐!在新的一年里开开心心!万事顺利!*重要是身体安康!
为了给两位知友布置工期,年二十九都在赶方案、谈方案,元旦夜都在加班画图,初二休息了*,还喝多了……幸而提早吃了解酒药,第二天赋可以正常任务,给自己布置的假期(2月20日至28日)算是泡汤了……不过这是我自己选择的,我喜欢。
努力总是有报答的,两位的工期布置上了~
新的一年一定多多直播,多多分享,愈加努力的做好设计和效劳。有时间的话也计划录制视频,跟大家说说装修的事情。
感谢的话说多就假了,所以我会把对知友的感谢之情都放在心里,用实践举动去报答大家。心外面方案了蛮多的方案,等做到了再说,先说就没意思了。
2020很累,2021会更累,但是回头看看自己的效果还是很欣喜的,往年无论多忙,都会把鸽了好多个月的作品陆续拍摄、整理、分享。
----------------良久不更新了,*个健明迪客户都快入住了20210502----------------
本次更新主要是删掉一些内容
更新下近期喜欢的作品
更新一下近期的订单排期



